こんにちは!ハウスモ不動産江坂店です!
今回ご紹介するのは、新大阪駅まで徒歩圏内という抜群の立地を誇る、2024年築のペット飼育相談可能な築浅分譲賃貸マンションです!
オートロックや防犯カメラ等の高いセキュリティに加え、インターネット無料や24時間ゴミ出しOKなど、都市生活を支える充実の設備が整っています!
「エムブイインプ新大阪」について
「エムブイインプ新大阪」の物件概要

| 所在地 | 大阪府大阪市淀川区木川東 |
|---|---|
| 最寄駅 | Osaka Metro御堂筋線/新大阪駅 徒歩7分 JR東海道・山陽本線/新大阪駅 徒歩10分 |
| 築年数 | 2024年3月 |
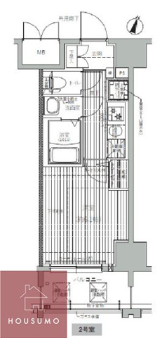
| 間取り | 1K |
| 構造 | 鉄筋コンクリート |
「エムブイインプ新大阪」の室内詳細
間取り

水道(公営) / ガス(都市) / 排水(下水) / バス専用共同(専用) / トイレ専用共同(専用) / バス・トイレ別 / コンロ種別(ガス) / コンロ口数(二口) / システムキッチン / 給湯 / エアコン / 室内洗濯機置き場 / CATV / CSアンテナ / BSアンテナ / オートロック / エレベータ / バルコニー / フローリング / 宅配ボックス / 駐輪場 / バイク置き場 / タイル貼り / internet対応(その他インターネット) / 角部屋 / 温水洗浄便座 / 浴室乾燥機 / ごみ出し24時間OK / 独立洗面台 / 防犯カメラ / インターネット利用料無料 / カード決済(初期費用) / シューズボックス / 照明器具付き / 二人入居可 / ペット相談 / 保証人不要 / 分譲賃貸 / 敷地内ゴミ置き場
※設備をクリック頂くと設備で条件を絞ることが可能です
LDK/洋室

洋室は、白を基調とした明るいフローリングが清潔感あふれるモダンな空間を演出しています。お部屋にはエアコンが1基標準装備されているため、入居当日から一年中快適な温度で過ごすことが可能です。バルコニーに面した大きな窓からは優しい自然光が差し込み、日当たり・通風ともに良好な心地よい住環境を整えています。シンプルな間取りは家具のレイアウトもしやすく、初めての一人暮らしでも自分好みの洗練されたプライベート空間を作り上げることができるお部屋です。
キッチン

キッチンは、自炊派の方も納得の2口ガスコンロを完備したスタイリッシュなシステムキッチンです。清潔感のあるホワイトと木目調を組み合わせた洗練されたデザインで、キッチン上下には調理器具や食器をたっぷり収納できるスペースもしっかり確保されています。シンク横には冷蔵庫を置くスペースも配置されており、無駄のない動線で効率よくお料理を楽しむことが可能です。毎日の自炊を快適にサポートしてくれる、機能美に優れたキッチンスペースに仕上がっています。
バスルーム

バスルームは、清潔感のあるホワイトで統一された爽やかなデザインが魅力の空間です。ゆったりとした浴槽には、温度調節がしやすい給湯パネルが備わっており、一日の疲れを優雅に癒やすことができます。また、天候や時間帯を気にせず洗濯物を乾かせる浴室乾燥機が完備されているため、忙しい日々でも家事をスムーズにこなせます。洗い場にはシャワーヘッドの高さを自由に変えられるスライドバーや、小物を置ける棚も設置されており、使い勝手も抜群です。ランドリーパイプも備わっているため、浴室全体を乾燥スペースとして有効に活用できる機能的なバスルームに仕上がっています。
脱衣所

洗面所(脱衣所)は、毎日の身支度をスムーズにする機能的な独立洗面台を完備した空間です。洗面台は、明るい照明付きの鏡と使い勝手の良い洗面ボウルを備えており、サイドには整髪料などの小物を置ける便利な収納棚も設置されています。洗面台の下部にも開き戸タイプの収納スペースがあるため、掃除用具やストック品を隠してスッキリと片付けることが可能です。また、室内洗濯機置き場も同スペース内に配置されており、入浴時の脱衣から洗濯までの家事動線が非常にスムーズに設計されています。白と淡い木目調を基調とした清潔感のある内装で、コンパクトながらも使い心地を重視したサニタリースペースです。
トイレ

トイレは白を基調とした清潔感のある空間で、毎日快適に使用できる温水洗浄便座が完備されています。上部には便利な棚が設置されており、トイレットペーパーのストックや掃除用品をスッキリと収納できる機能的な設計です。ペーパーホルダーやタオル掛けはスタイリッシュなシルバーで統一され、シンプルながらも洗練されたモダンな雰囲気を演出しています。
収納


洋室にはハンガーパイプと枕棚を備えたクローゼットが設置されており、大切な衣類を丈に合わせてスッキリと収納できます。玄関横には、棚の高さを調節できる可動式のシューズボックスが完備され、靴だけでなく傘なども機能的に収めることが可能です。さらに廊下部分にも物入が配置されており、日用品のストックや掃除用具などを隠して収納できるため、居住スペースを常に美しく保てます。白を基調とした扉が壁面と調和し、お部屋全体の広がりを損なうことなく、高い収納力を実現しています。
「エムブイインプ新大阪」のおすすめポイント
お部屋探しでお困りの方へ
ハウスモ不動産江坂店では、吹田市、豊中市、淀川区、東淀川区を中心に大阪市内の最新の賃貸情報(マンション・アパート・戸建)をお届けしています。
任せてよかったと納得、安心していただけるお部屋探しのサポートを提供させていただきます。
ご希望のお部屋がホームページに掲載されていない場合でもご安心ください。家主様のご都合でインターネットに掲載できないご希望エリアの物件をご紹介させていただきます。
「賃貸・売買で契約の事がわからない」「遠方で来店ができない」「初期費用を抑えたい」等のお悩みはお気軽にご相談ください。